Mais que um conceito de urbanismo e arquitetura, essência em um loteamento fechado de alto padrão, com tudo de melhor que a vida pode oferecer.
Hoje é o dia do Tamboré Jundiaí, mas primeiramente quero me apresentar. Sou Elis Salles, escritora, corretora, avaliadora de imóvel e atualmente atuo como consultora. Escolher o melhor lugar e mais adequado para a família para se morar, parece uma tarefa fácil, mas não é. São muitos os fatores que devem ser levados em consideração para escolher sua próxima moradia, e para isso é necessário conhecimento na região, e é ai que eu atuo, contribuindo com a escolha. Se é esse o seu caso, entre em contato que terei prazer em atendê-lo, além da consultoria vamos fazer um city tour na cidade.
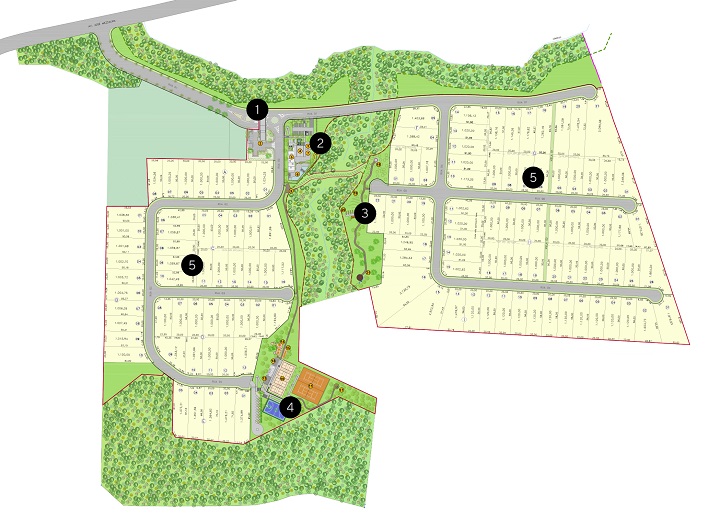
O Tamboré Jundiaí foi pensado para quem busca uma vida mais saudável, equilibrada e feliz. O conceito paisagístico coloca o espaço como um grande parque com residências, valorizando na sua essência o contato direto com a natureza. Tudo isso aliado a uma infraestrutura completa de lazer e segurança.
CHEGAR AO LUGAR DOS SONHOS NÃO BASTA. É PRECISO FAZER ACONTECER.
FICHA TÉCNICA TAMBORÉ JUNDIAÍ:
• 126 lotes a partir de 1.000,00m²
• 113.453,22 m² de áreas verdes - área total 315.242 m2
• Lote do clube: 3.057,26 m²
• Projeto Arquitetônico e Interiores: DMDV Arquitetos
• Projeto Paisagístico: Felipe Reichmann Paisagismo
• Projeto Luminotécnico: Acenda Projeto de Iluminação
- Academia
- Salão de festas
- Raia semiolímpica coberta
- Cinema ao ar livre
- Playground Baby
- Piscina adulto e infantil
- Equipamentos de ginástica
- Quadras de beach tennis
- Quadras de tênis
- Quadra poliesportiva
- Quiosques churrasqueiras
- Playground Kids
- Academia ao ar livre
- Pet Park
- Fogo de chão
- Pomar de frutas cítricas
- Parreiral
- Horta
- Deck meditação | ioga
- Pomar de frutas nativas
Frente mínima de 20 metros.
Av. José Mezzalira , 128, Ivoturucaia - Região do Caxambu em Jundiaí

























.jpg)
.jpg)
